3D zaměření laserovým skenováním a modelování krovu mansardního podlaží, Praha

Přesné zaměření skutečného stavu stavebních konstrukcí pro opravy a rekonstrukce.


Pozemni laserove skenovani mansardniho podlazi pred rekonstrukci, Praha
Laserovy skener na stativu na terase u mansardni strechy v centru Prahy

Jedním z typických úkolů, které pomáháme řešit pomocí pozemního laserového skenování, je obnova nebo aktualizace ztracené dokumentace budov a interiérů. Stavební proces je složitý a někdy se stává, že práce nejsou z různých důvodů dokončeny podle projektu.

Stanoviste laseroveho skenovani na terase s vyhledem na strechy Prahy

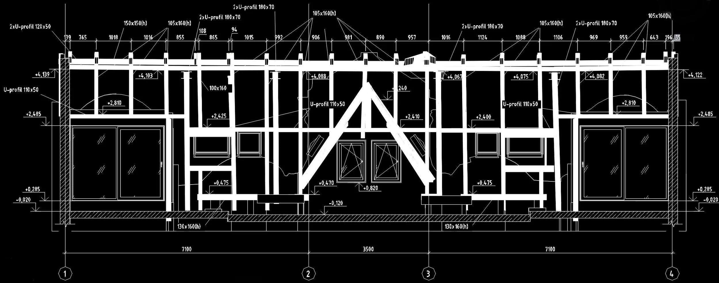
V našem nedávném projektu bylo cílem aktualizovat výkresy stavebních konstrukcí podle skutečného stavu a vytvořit přesný 3D BIM model. Mansardní podlaží o celkové ploše přibližně 250 m² se složitou střechou a nosnými dřevěnými i ocelovými nosníky v centru Prahy jsme naskenovali během 2 hodin. Celkový počet skenovacích stanovišť činil 53. Mračno bodů bylo zředěno na rozlišení 5 mm a připraveno v Autodesk ReCap pro následné modelování v softwaru Revit.

Laserovy skener pri zamerovani strechy s vyhledem na historicke centrum Prahy

Výsledkem 3D skenování bylo husté mračno bodů v jednotném souřadnicovém systému, které jsme následně vyčistili od odrazů a šumu. Ve fázi 3D modelování bylo nutné odvést velmi precizní práci.

Mračno bodů z laseroveho skenovani krovu mansardniho podlazi

3D BIM model krovu mansardniho podlazi s drevenymi a ocelovymi nosniky

Díky tomu jsme dokázali vytvořit 3D model, který velmi věrně odpovídá skutečnému prostorovému uspořádání stavebních konstrukcí (as-built). Na základě modelování jsme následně připravili sadu 2D výkresů – obměřovací půdorys podlaží s kótami, dva řezy a plán krovu.

Klient nyní může využít 3D BIM model pro další vizualizace a rekonstrukci a zároveň používat přesné 2D výkresy jako podklad pro architektonický projekt.

Nosníky různých průřezů a délek, uložené pod různými úhly a sklony, byly našimi specialisty modelovány přímo podle mračna bodů laserového skenování s maximální možnou přesností.


Celkovy pohled na 3D BIM model mansardniho podlazi se slozitym krovem
Previous
Previous

3D laserové skenování fasád a terénu pro BIM model, Aquapalace Praha

Next
Next

Laserové skenování a zaměření skutečného stavu. Hradec Králové.