Zaměření bytů, domů a interiérů
Provádíme 3D měření interiérů v co nejkratším termínu a dodáváme hotové výkresy či 3D modely pro účely designu nebo rekonstrukce
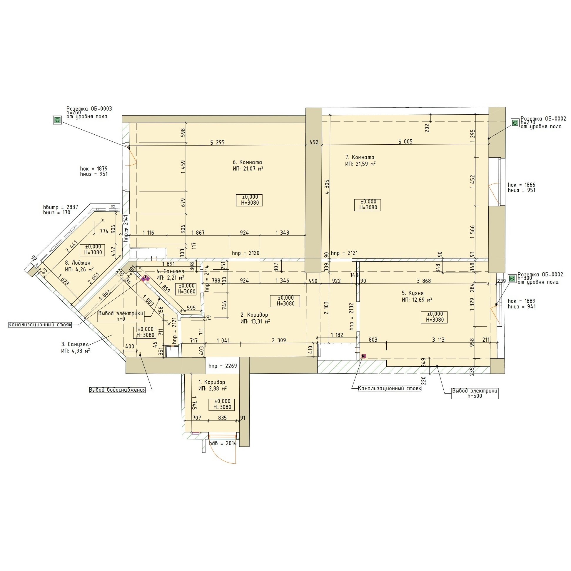
Provádíme komplexní 3D zaměření budov a prostor libovolné složitosti. Pomůžeme vám rychle a bez čekání provést zaměření budovy či interiéru pro potřeby designérů, architektů nebo stavebních firem. Nabízíme hotové 2D výkresy, 3D modely nebo mračno bodů k vlastnímu zpracování. Poskytujeme podporu při práci s mračny bodů v CAD software, jako je AutoCAD, ArchiCAD, Revit, SketchUp aj.
Nabízíme také 360° panoramatické fotografie pořízené profesionální technikou, které slouží jako praktický doplněk k výkresům a usnadňují práci na dálku. Návrháři tak mohou pohodlně pracovat s objektem i bez fyzické přítomnosti. Soustřeďte se na kreativní část projektu — technické detaily nechte na nás. Měření provádíme v Praze, po celé České republice i v rámci EU.
Výstupy zaměření
-
Mračno bodů
V libovolném formátu pro integraci do vašeho softwaru AutoCAD, ArchiCAD, Revit a další. Práce s mračnem bodů v CAD programech – naučíme vás krok za krokem.

-
2d výkresy
Podrobné 2D půdorysy místností s kótami, výškami podlah a stropů. Řezopohledy stěn, řezy, zaměření trámů, výkresy fasád, střech, plány krovů aj.

-
3D modely
Podrobné 3D modely budov a interiérů včetně inženýrských sítí na základě laserového skenování. Modely s vysokou úrovní detailu v ArchiCAD, Revit, AutoCAD atd.

-
Pasport stavby
Získejte zjednodušený stavební pasport s přehlednou dokumentací — rychle a za výhodnou cenu.

-
Výkresy fasád
Podrobné výkresy včetně složitých fasád a detailů pro restaurování a ochranu kulturního dědictví.

-
3d model reliéfu
Digitální model terénu (DTM) nebo výškový model (DEM) vytvořený z dat laserového skenování.

Naše výhody:
Garantujeme přesné výsledky bez ohledu na složitost dispozice
1
Rychlost – byt o rozloze 70 m² změříme za pouhých 20 minut
2
Naučíme vás pracovat s mračnem bodů v CAD programech
3
V oblasti měření působíme řadu let a máme za sebou stovky úspěšných projektů
4
Oblasti využití:
Design interiéru — přesné zaměření interiéru je základem kvalitního návrhu designu. Laserové skenování poskytuje kompletní a detailní data o skutečných rozměrech místností, polohách konstrukčních prvků, oken, dveří i technického vybavení. Díky tomu mohou designéři navrhovat interiéry s milimetrovou přesností a vyhnout se chybám při realizaci.
Rekonstrukce a obnova prostor — před každou rekonstrukcí nebo obnovou prostor je klíčové znát skutečný stav objektu. Laserové skenování zajistí přesné zaměření stávajících konstrukcí, rozvodů a detailů, na které se lze při plánování spolehnout.
Montáž nového vestavěného nábytku — přesné laserové zaměření prostoru je ideálním řešením před montáží vestavěného nábytku. Umožňuje zohlednit každou nerovnost stěn, podlah i stropů a předejít problémům při výrobě a instalaci.
Obnova ztracených kreseb místností — obnova ztracených kreseb místností pomocí laserového skenování šetří čas a minimalizuje riziko chyb, které vznikají při ručním měření.
Kdy může být potřeba zaměření bytu?
Obvykle zaměření provádějí přímo na místě sami návrháři, stavební firmy nebo výrobci nábytku na míru. Existují však situace, kdy výjezd odborníka není možný, například:
Designér, jehož práce se vám líbí, působí v jiném městě nebo dokonce v zahraničí. Zákazníci si přejí projekt od něj, ale on sám nemá možnost byt osobně zaměřit.
Výrobce nábytku sídlí daleko a přijímá objednávky na základě rozměrů dodaných zákazníkem.
Je potřeba ověřit přesnost měření. Ne všechny stavební firmy připravují rozpočty zcela transparentně. Pokud si například majitel nechá zpracovat cenové nabídky od tří různých firem a obdrží tři různé výsledky měření, dává smysl provést vlastní kontrolní zaměření.
Při rekonstrukci bytu svépomocí jsou přesná měření nezbytná pro výpočet množství potřebného materiálu.
Situací, kdy se vyplatí zajistit profesionální zaměření bytu, domu nebo komerčního prostoru, je celá řada — například při rekonstrukci, koupi či prodeji nemovitosti, při kolaudaci, změně dispozic nebo přípravě projektové dokumentace. Přesné zaměření interiéru a fasády je klíčové pro plánování stavebních úprav i pro splnění požadavků úřadů.
Níže vysvětlíme, jak probíhá zaměření budovy laserovým skenováním, na co si dát pozor a jaké výstupy můžete očekávat.
Jak probíhá zaměření laserovým skenerem
Laserové 3D skenování interiérů a budov je dnes nejmodernější metoda zaměřování staveb, která poskytuje rychlé a detailní výsledky. Doporučujeme postupovat podle následujících kroků:
1. Určete účel zaměření
Nejdříve si ujasněte, k čemu chcete výsledky zaměření nemovitosti použít — jiný rozsah a úroveň detailu je potřeba pro dokumentaci skutečného stavu, jiný pro rekonstrukci nebo projektovou dokumentaci.
2. Připravte prostor na měření
Odstraňte z prostoru zbytečný nábytek a zajistěte přístup ke všem měřeným částem. Tím zvýšíte přesnost zaměření a zkrátíte čas na místě.
3. Využijte moderní technologie
Díky 3D laserovému skenování budov a interiérů získáte nejen mračno bodů, ale i detailní 2D výkresy — půdorysy, řezy, pohledy na fasády, rozvinuté pohledy stěn — a přesné 3D modely podle úrovně detailu LOD. Laserové skenování zaznamená skutečný stav s přesností až na milimetry.
4. Domluvte si výstupy na míru
Zaměření můžeme dodat v různých formátech podle Vašich potřeb — DWG, PDF, STL, BIM modely apod. Předem se s námi poraďte, jaký rozsah dokumentace pro Vás bude nejvhodnější.
5. Spolehněte se na zkušené odborníky
Výběr profesionální firmy na zaměření domu laserovým skenerem Vám zajistí přesnost, kvalitní výstupy a úsporu času při dalších stavebních i úředních krocích.
Pokud hledáte rychlé a přesné zaměření laserovým skenováním v Praze a okolí, neváhejte nás kontaktovat. Rádi Vám poradíme a připravíme řešení na míru.